Установка огнестойких дверных блоков согласно нормам СНиП и ГОСТа является обязательной на эвакуационных выходах, в жилых зданиях с хозяйственными помещениями, на производствах и т.д. Технология установки огнестойких конструкций отличается от крепления стандартных дверей. Работы выполняются в соответствии с положениями ГОСТа 31173-2003. Документ регламентирует расположение блоков, число петель, материалы, конструктивные особенности и т.д.
Места обязательной установки
Установка противопожарных дверей обязательна в строениях, имеющих потенциальную возможность возгорания оборудования либо стройматериалов. В перечень объектов риска включены лифтовые тоннели, вентиляционные камеры, тепловые пункты, складские помещения с горючим сырьем, электрические щитовые, кабельные тоннели и т.д.
Типы огнеупорных преград в зданиях обозначаются на схемах проектировщиками. Согласно техническому регламенту о требованиях к пожарной безопасности определены пределы огнестойкости конструкции для разных помещений. По условиям СНиПа 21-01-97 конструкции должны обеспечивать возможность сдерживать рассредоточение огня на промежутки согласно классам в 15, 30, 60, 90 минут.


Установки блоков с максимальной защитой от возгорания требует главный распределительный щит, включающий огнеопасные компоненты. Также в ГРЩ монтируется замок только с противопожарными характеристиками.
Установка огнеупорных дверных полотен необходима в многоквартирных домах, в которых имеются встроенные нежилые помещения. Противопожарные конструкции размещают в проемах, соединяющих деловые и торговые помещения с общими лестничными клетками и коридорами жилых зданий.


Установка однопольных глухих противопожарных дверей требуется в складских и торговых помещениях. Устойчивые к возгоранию блоки должны быть размещены в зданиях с высокой проходимостью, подвальных и цокольных помещениях с общими техническими стенами, в коридорах, ведущих на чердаки и кровлю здания.
В промышленных сооружениях требуется обязательная установка противопожарных перегородок. Огнестойкие входные блоки устанавливают на производстве в проходах, которые ведут в цехи, склады, подсобные помещения, зоны для отдыха сотрудников.
Стойкие к воздействию огня дверные блоки устанавливают в тамбур-шлюзах и других противопожарных преградах, аварийных выходах на балкон, лоджию либо в смежную секцию здания и т.д.
Со стойкостью к высоким температурам должны быть двери на эвакуационных выходах, конструкции снабжаются обязательно противодымной защитой.
Требования к противопожарной двери при выборе
Существуют требования к качеству противопожарной конструкции, которые регулируются нормами ГОСТа. К критериям для выбора относится предел огнеупорности материала. Показатель влияет на долговечность и устойчивость сырья к воздействию высоких температур.

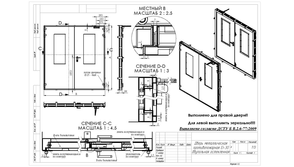
Противопожарные двери изготавливаются из стали, стекла и даже древесины, обработанной термостойкими веществами. По нормам ГОСТ самое надежное противопожарное полотно производится из профильных труб из тугоплавкого металла с обшивкой.


Важен уровень устойчивости изделия к деформациям от огня. Двери делятся на классы по возможности выдерживать воздействие высоких температур. Оптимальный предел огнестойкости — до 30 минут. Возможны перегородки, которые преграждают огненную полосу до 15 и 60 минут.
Для противопожарных конструкций важно обеспечить правильную изоляцию. Перегородка должна отличаться невысокой проводимостью тепла и иметь надежную дымоизоляцию. При монтаже важно качественно изолировать стыки, чтобы дверь не пропускала продукты горения.


Ширина огнестойкой конструкции должна составлять не менее 1 м для организации при пожаре безопасного выноса пострадавшего на носилках. По правилам пожарной безопасности дверные блоки в эвакуационных проходах должны распахиваться только по направлению выхода из здания.
Особенности конструкции предписывают регламентом толщину двери от 5 до 12 см. Каркас должен представлять цельный профиль, прошедший обработку под воздействием высоких температурных режимов. Пустоты и щели дверей заполняются только специальными сплавами, способными защитить помещение от воздействия огня и дыма.
Существуют определенные требования и к качеству фурнитуры. Огнестойкие двери должны оснащаться доводчиками. Замки должны легко открываться, не допустима блокировка деталей. Не разрешены к использованию в качестве фурнитуры элементы из горючего сырья (пластик, древесина), рекомендованы только термоустойчивые сплавы.


Основные правила установки
Нормативы установки огнестойких дверей содержатся в условиях ГОСТа и СНиПа. Техническое задание на такие работы может выполнять только компания, имеющая разрешение и лицензии.


В процессе монтажных работ не рекомендуется захлопывать дверное полотно при выступающих ригелях замочного устройства. При установке запрещено оставлять людей в закрытом помещении.
При распаковке рекомендуется изучить упаковку на отсутствие дефектов, проверить комплектность. На деталях (полотно, коробка) и элементах фурнитуры должны отсутствовать повреждения.
В дверном проеме необходимо расчистить пространство. Штукатурку и лакокрасочные покрытия, не имеющие противопожарных характеристик, необходимо снять до несущей конструкции.
После монтажа блока требуется не меньше 10 раз закрыть и открыть изделие, проверяя плавность хода. Доводчик, короб и дверное полотно должны быть от одного производителя. Запрещается комбинировать изделия разных фирм.
Толщина перегородки с высокой огнестойкостью, по правилам установки противопожарных дверей, должна быть не менее 12,5 см. Если габариты меньше этого показателя, полотно дополнительно может армироваться для изменения размера.
Следует учитывать, что дверь должна открываться беспрепятственно по всей ширине, поэтому прилегающая территория должна быть свободной от бытовых вещей и мебели. Металлические полотна, установленные не по правилам, может не принять пожарная комиссия.


Пошаговая инструкция по монтажу
Монтаж противопожарных дверей включает этапы по установке короба, полотна и регулировке доводчика. Для работ потребуются инструменты: перфоратор, бур с наконечником, молоток, нож, рулетка. Пригодятся также строительный уровень, малярный скотч, монтажная пена, болты и шурупы.


Работы начинаются с монтажа дверного короба (рамы). Подготовка проема включает очистку поверхностей от старой штукатурки и лакокрасочных покрытий до несущих стен.
Затем полотно снимается с коробки. Рама устанавливается в монтажный проем, не повреждая термореактивный уплотнитель, который крепится по периметру.


С помощью строительного уровня необходимо выполнить регулировку положения короба. Затем конструкция фиксируется с помощью клиньев, обработанных противопожарным составом. Клинья вставляются в зазоры между дверной рамой и несущими стенами.
Следующий этап включает предварительную оценку правильной установки двери. Полотно навешивается на короб. В закрытом положении необходимо проверить зазор между каркасом и полотном, расстояние должно быть одинаковой ширины по всему периметру. Проверяется плавность движения посредством открытия и закрытия створок.
Полотно снимается, коробка фиксируется в монтажном проеме. Необходимо просверлить через короб отверстия в стеновой панели на требуемую глубину. Затем анкерные болты плотно вкручивают, не допуская смещения дверного каркаса. С каждой стороны требуется не меньше 3 болтов. Стыки со стеновыми панелями заполняют герметиком с огнеустойчивыми качествами.
Следующий этап — монтаж полотна. Дверь необходимо навесить на коробку. Проводится 10-20 циклов открывания и закрывания. При правильном монтаже на дверь устанавливается замочный механизм и ручки. Замок и фурнитура должны поворачиваться плавно, без усилий.


Зазоры между коробом и несущей конструкцией заполняются песчано-цементным огнеупорным составом либо противопожарной монтажной пеной. В закрытом положении дверь оставляют на сутки до высыхания и затвердевания швов.
Затем монтируются доводчики. Для двупольных конструкций необходимо 2 элемента, которые фиксируются на каждой створке. Эксплуатация огнестойких дверей без систем для самозакрывания запрещена.


Проверяется работа механизмов и плавность хода коробки. При исправной работе конструкции необходимо вызвать представителей пожарной службы. Инспектор должен проверить соответствие нормативам монтажных работ, результаты проверки протоколируются. В документе указывается класс огнестойкости, ставятся подписи и печати. Сертификат действителен в течение 3 лет, если в конструкцию не будут вноситься дополнительные изменения.